Piano Urbano del Traffico, le anticipazioni su quel che sarà di Casalmaggiore
Questo il PUT che a breve verrà presentato in forma ufficiale. Un Piano Urbano del Traffico destinato, per tante scelte, comunque a far discutere. Dal parcheggio di via Saffi alla riduzione del parco di via Trieste
CASALMAGGIORE – Ci vorrà ancora un mese per la presentazione del PUT. Il Piano Urbano del Traffico infatti sta seguendo l’iter che lo vede, in questo momento, sottoposto alle possibili osservazioni legate al VAS (Valutazione Ambientale Strategica). Ma è proprio dal VAS, nonostante il progetto non sia ancora stato presentato, che si comincia a vedere come cambierà la città. Grazie alla Valutazione siamo in grado di anticipare i cambiamenti del traffico urbano una volta che il PUT entrerà in pieno vigore e al netto di cambiamenti che potranno eventualmente esserci quando lo strumento sarà sottoposto alle osservazioni di rito. Piazza Turati riaperta al traffico, doppio senso di marcia in via Favagrossa, parcheggio ed apertura strada nel parco di via Trieste, ma anche spostamento delle corriere nel parcheggio del parco di via Corsica e creazione di un parcheggio rotatoria di fronte alla Polizia Municipale. Sono solo alcune delle novità previste. Ma procediamo con ordine.
VIA ROMA – VIA ROMANI: Istituzione senso unico di circolazione in via Romani dall’incrocio via Adua – Via Formis a Via Baldesio. Inversione dell’attuale senso unico dell’ultimo tratto finale di via Adua fino all’incrocio con via Romani. Creazione di due dossi artificiali per il rallentamento delle autovetture in prossimità dell’incrocio con via Guerrazzi e via Del Lavoro. Allargamento delle sezioni terminali dei marciapiedi, sistemazione di stalli per le autovetture, secondo la normativa vigente, lasciando libero il passaggio pedonale sui marciapiedi attualmente occupati.
ZONA VIA BALDESIO: La prima parte di via Baldesio da Piazza Garibaldi all’incrocio con via del Lino verrà chiusa al traffico e sarà percorribile solo dai residenti.

ZONA DI VIA FORMIS – ISOLABELLA – VIA FAVAGROSSA: La proposta è quella di invertire i sensi di marcia di alcune vie; via Veneto diventerà senso unico con direzione da via Guerrazzi a via Formis, via Zuccari sarà senso unico con direzione dall’Isolabella a via Guerrazzi e in via Favagrossa verrà instituito un doppio senso di circolazione. Così facendo si verrà a creare un’anello di circolazione più efficace. Gli interventi previsti sono: costruzione di una pista ciclabile ad uso promiscuo a senso di circolazione (senso contrario al senso di marcia delle autovetture), questa sarà realizzata sul lato sinistro di via Formis (a lato del Duomo), la pista ciclabile partirà dal duomo e raggiungerà l’istituto Busi, per garantire maggiore sicurezza sia ai pedoni, sia ai ciclisti. Questa pista ciclabile sarà a quota stradale, delimitata da paletti di protezione. Verranno risistemati i parcheggi davanti al Duomo, non più a spina di pesce ma verticali. Riorganizzazione dei parcheggi nella zona dell’Isolabella. Costruzione di una rotatoria nell’incrocio con via Veneto. Considerato l’inversione di marcia di via Veneto e verificata la scarsa visibilità all’uscita pedonale dal parco del Duomo per maggiore sicurezza si installeranno delle transenne di protezione. Nella zona dell’Isolabella verranno creati dei nuovi marciapiedi, nei tratti mancanti, a quota stradale circoscritti da paletti di delimitazione, al fine di garantire una maggiore sicurezza ai pedoni. Riorganizzazione dei parcheggi in piazza Garibaldi in entrata di Via Favagrossa. Si intende inoltre inserire una aiuola spartitraffico in corrispondenza dell’immissione di via Favagrossa in Piazza Garibaldi, in modo da garantire una maggiore sicurezza ai pedoni che attraversano la carreggiata. Risistemazione incrocio tra via Favagrossa e l’Isolabella creando una zona di carico e scarico in sicurezza e un manufatto per migliorare l’entrata e l’uscita da via Favagrossa. Verrà creato un percorso sicuro, con gli appositi parcheggi, per facilitare il passaggio dall’Isolabella a Piazza Garibaldi e viceversa. Questo quanto riporta il nuovo PUT relativamente all’area. Così come avevamo anticipato via Favagrossa perde i parcheggi e torna, come poco più di vent’anni fa, a doppio senso di marcia.
ZONA VIA GUERRAZZI VIA ROMA – La proposta è quella di far diventare tutta via Guerrazzi senso unico da via Cavour a via Roma, risistemare i parcheggi liberando così il marciapiede, demarcare la pista ciclabile esistente con paletti di delimitazione per garantire maggiore sicurezza ai ciclisti. Delimitazione della ciclabile esistente a quota stradale tramite l’uso di paletti di demarcazione sul lato sinistro della via. Verranno allargate le sezioni terminali dei marciapiedi nella zona dell’incrocio con via Roma e via Romani, portando al limite lo stop per migliorare la visibilità sull’incrocio, verrà anche ridotta la carreggiata al limite imposto dalla normativa vigente per assicurare un miglior attraversamento pedonale in sicurezza per i pedoni e i ciclisti. Verrà facilitato l’ingresso in via Veneto rendendo più sicuro l’attraversamento pedonale e ciclabile.
ZONA VIA CAVOUR – Gli interventi: sarà risistemato il parcheggio nella zona finale di via Petofi e via Paul Harris, Collegamento di via Paul Harris a via Petofi. Primo tratto di via Cavour da via Petofi a via Guerrazzi diventerà senso unico in direzione della piazza Garibaldi. Saranno risistemati i parcheggi in tutta la via facendo in modo che ci sia un rallentamento delle autovetture. Sarà creata una pista ciclabile ad uso promiscuo allargando la sezione del marciapiede esistente, dalla piazza sino all’ attuale stazione dei carabinieri, dove verrà realizzato un attraversamento pedonale e si utilizzerà il marciapiede dal lato opposto della carreggiata, che è di dimensioni adeguate per contenere la ciclabile ad uso promiscuo che proseguirà sino a via Petofi. Saranno create delle aiuole per facilitare e risolvere l’incrocio via Cavour, via Marconi, Piazza Garibaldi, facendo in modo che le vetture si incanalino senza creare momenti d’intralcio fra le due vie, che devono immettersi entrambe in Piazza Garibaldi e le autovetture già immesse nella Piazza stessa.
PIAZZA TURATI – Anche questa una rivoluzione annunciata. La piazza sarà riaperta al traffico con parcheggi. Il salotto di Casalmaggiore rivedrà le auto. In Piazza Turati si entrerà da Via Brofferio, la stessa piazza avrà accesso inoltre da Via Cairoli, e vuoterà su via del Lino, così facendo si crea un movimento rotatorio di facile accesso e agevole uscita. Gli interventi: individuazione dei posti auto, instaurazione di senso unico da via Brofferio a via del lino, reinterpretazione dell’attuale fontana.

ZONA DI VIA SAFFI – La ‘fantasia’ qui raggiunge l’apice. Si prevede di risistemare i parcheggi in modo da creare una sorta di rotatoria, all’altezza dell’ingresso della sede della Polizia Municipale cosi che le autovetture provenienti dall’argine non possano più curvare direttamente in via Del Lino ma debbano percorrere la rotatoria prima di effettuare la svolta, inoltre si facilita la svolta da chi proviene da via Cairoli in direzione Via Mentana o Via del Lino.
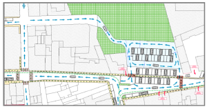
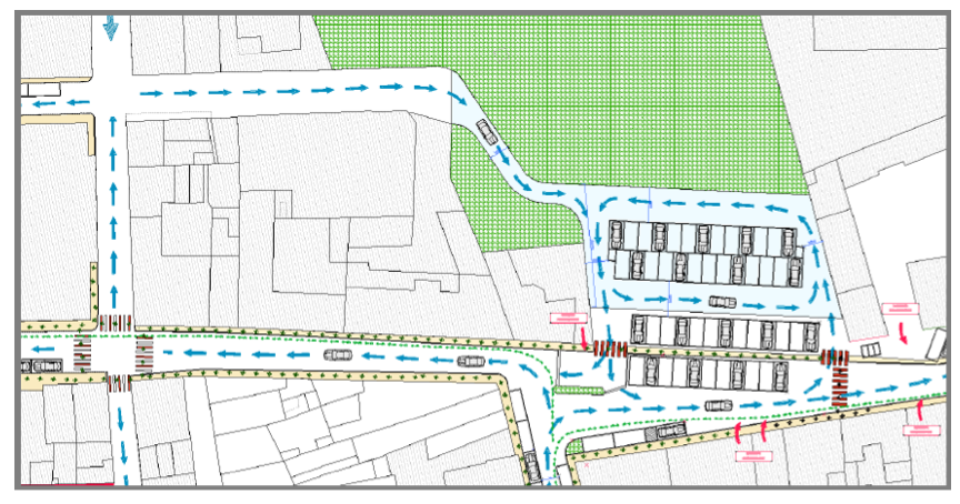
ZONA VIA CAIROLI – VIA COLOMBO – VIA AZZO PORZIO – PIAZZA GARIBALDI – VIA MARCONI – La proposta è quella di portare via Colombo a senso unico con direzione da via Cairoli a via Azzo Porzio, dividere via Cairoli in due tratti, il primo tratto sarà a senso unico da Piazza Garibaldi sino a via Colombo, il secondo tratto invece andrà da via XX Settembre a Via Colombo, in senso contrario al primo. Nel primo tratto di via Cairoli verranno riorganizzati i parcheggi, verrà migliorato l’incrocio con via Saffi tramite la posa di manufatti di delimitazione , al fine di garantire una maggiore sicurezza sia ai pedoni sia alle autovetture parcheggiate. Nel secondo tratto di via Cairoli verranno risistemati i parcheggi, verrà posizionato un restringimento di carreggiata al fine di ridurre la tentazione di eccedere nella velocità e inoltre avremo una maggiore sicurezza dei pedoni e dei ciclisti, considerato inoltre che, esiste per i ciclisti una corsia dedicata. Via Colombo diventerà a senso unico da via Cairoli a via Azzo Porzio, verranno risistemati i parcheggi in tutta la via, verrà riorganizzato l’incrocio con via Azzo Porzio. Via Azzo Porzio sarà divisa in due tratti, il primo tratto sarà senso unico in uscita da Casalmaggiore, ed andrà da via Colombo a Via XX Settembre, invece il secondo tratto sarà senso unico con direzione da via Colombo a Piazza Garibaldi come attualmente. Nel primo tratto saranno riorganizzati i parcheggi, in modo da ridurre la tentazione da parte degli automobilisti di oltrepassare il limite di velocità. Altro provvedimento che ha già fatto e farà discutere, per il necessario abbattimento delle piante che delimitano il parco di via Trento sul lato di via Porzio, al fine di fronteggiare la consistente perdita di parcheggi (così recita il PUT riportato dal VAS) nelle via adiacenti verrà realizzato un piccolo parcheggio utilizzando una parte del attuale parco, pari a circa 700,00 mq.; innanzi tutto il nuovo parcheggio si incorpora con gli attuali posti auto, così facendo si aumenta l’area di parcheggio riducendo al minimo il prelievo di terreno dal parco. Come si evince dall’inserto grafico, un’altra sostanziale opera a corredo del parcheggio in oggetto è il prolungamento di un piccolo tratto di via Marconi, il quale favorirà l’ingresso ai posti auto da chi proviene da via Via Bixio, considerando che il tratto terminale di quest’ultima diventerà a senso unico da via Azzo Porzio. Nel secondo tratto di Via Azzo Porzio verranno riorganizzati i parcheggi, verrà posizionato come in via Cairoli un restringimento di carreggiata. Sarà risistemato l’incrocio fra via Marconi e Via Cavour in entrata a Piazza Garibaldi, ove attualmente sono presenti dei conflitti fra i flussi di traffico della Piazza e quelli in immissione dalle vie in oggetto. Seguirà la riorganizzazione dei parcheggi nella zona dell’attuale edicola. Tale riorganizzazione di fatto allunga virtualmente via Marconi portandola al limite di incrocio con via Cavour; attraverso la costruzione di un’aiuola nel tratto finale (virtuale) di via Marconi si restringe la carreggiata garantendo un incrocio più sicuro per chi vi transita.
ZONA VIA ADUA – VIA ROTELLI – VIA GIOVANNI PAOLO II – La proposta è quella di rendere via Rotelli e via Giovanni Paolo II ZTL in modo che gli accompagnatori non possano più entrarvi e, di conseguenza, dovranno accompagnare gli alunni utilizzando per la sosta veicolare il parcheggio dedicato situato di fronte alla scuola elementare.

ZONA DI VIA DELLA POSTA – VIA MINATORI DEL BELGIO – Nell’ambito del Piano Urbano del traffico si ipotizza l’allestimento della stazione delle autocorriere nell’area dell’ex campo sportivo di via Minatori del Belgio, ciò garantirebbe un livello di accessibilità pressoché equivalente alle strutture scolastiche e non sconvolgerebbe l’assetto generale delle autolinee, relativamente ai percorsi e ai tempi di percorrenza dato che la nuova stazione sarebbe situata a circa 200 m. in linea d’aria dall’attuale autostazione. La presenza del parcheggio, attualmente sottoutilizzato, garantirebbe l’interscambio fra le varie autolinee assicurando una maggiore sicurezza agli utenti che utilizzeranno il servizio e garantendo una maggiore sicurezza alle autocorriere in sosta/fermata. Condizione necessaria per lo spostamento della stazione delle autocorriere è l’allargamento della parte terminale di via Minatori del Belgio per facilitare l’uscita in via Corsica sia alle autocorriere sia alle autovetture.
Questo il PUT che a breve verrà presentato in forma ufficiale. Un PUT destinato, per tante scelte, comunque a far discutere.
Nazzareno Condina














